Die Casa Lignea ist ein großzügiges Satteldachhaus mit einer klaren, geradlinigen Architektur im skandinavischen Flair. Die Kombination aus weißer Putzfassade und gezielt eingesetzter Holzverkleidung verleiht dem Haus einen natürlichen, charmanten Look, der das Gesamtbild aufwertet und einen besonderen Reiz ausstrahlt.
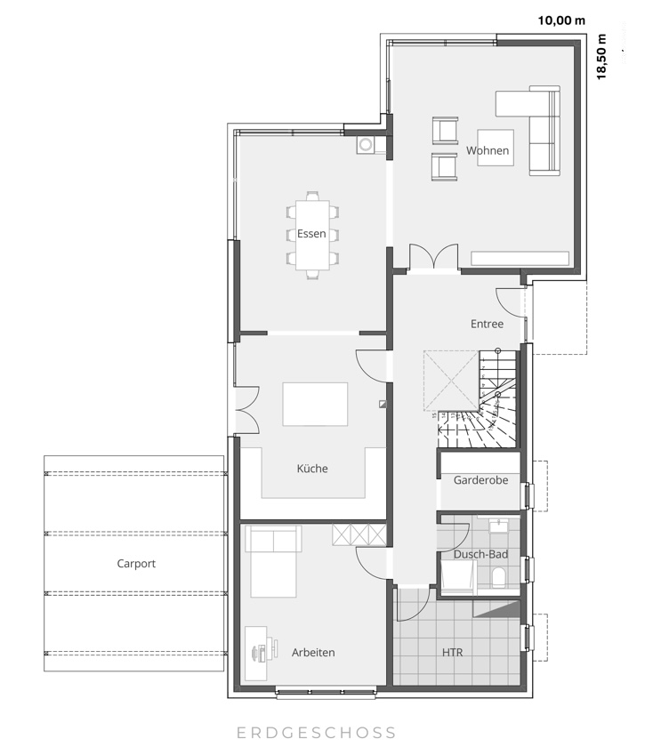
Die Casa Lignea ist ideal für längliche Grundstücke geeignet. Mit einer Breite von nur 10 m und einer Länge von 18,50 m passt dieses Haus perfekt auf Grundstücke, die eine begrenzte Breite, aber ausreichende Länge bieten. Der überdachte Eingang an der Seite des Hauses führt direkt in die großzügige Diele, von der aus alle Räume bequem erreichbar sind. Auf der rechten Seite gelangt man durch eine Doppelflügeltür in den hellen und einladenden Wohnbereich.
Das etwas versetzte Esszimmer grenzt an die offene Küche. Der gesamte Bereich von Küche, Esszimmer und dem dahinter liegenden Wohnbereich ist einladend gestaltet und verspricht schöne Momente im Kreise von Freunden und Familie. Vom Flur aus erreicht man zudem die Garderobe, ein Gästebad mit Dusche, ein geräumiges Arbeitszimmer und den Hauswirtschaftsraum.
Die Casa Lignea ist ideal für längliche Grundstücke geeignet. Mit einer Breite von nur 10 m und einer Länge von 18,50 m passt dieses Haus perfekt auf Grundstücke, die eine begrenzte Breite, aber ausreichende Länge bieten. Der überdachte Eingang an der Seite des Hauses führt direkt in die großzügige Diele, von der aus alle Räume bequem erreichbar sind. Auf der rechten Seite gelangt man durch eine Doppelflügeltür in den hellen und einladenden Wohnbereich.
Das etwas versetzte Esszimmer grenzt an die offene Küche. Der gesamte Bereich von Küche, Esszimmer und dem dahinter liegenden Wohnbereich ist einladend gestaltet und verspricht schöne Momente im Kreise von Freunden und Familie. Vom Flur aus erreicht man zudem die Garderobe, ein Gästebad mit Dusche, ein geräumiges Arbeitszimmer und den Hauswirtschaftsraum.
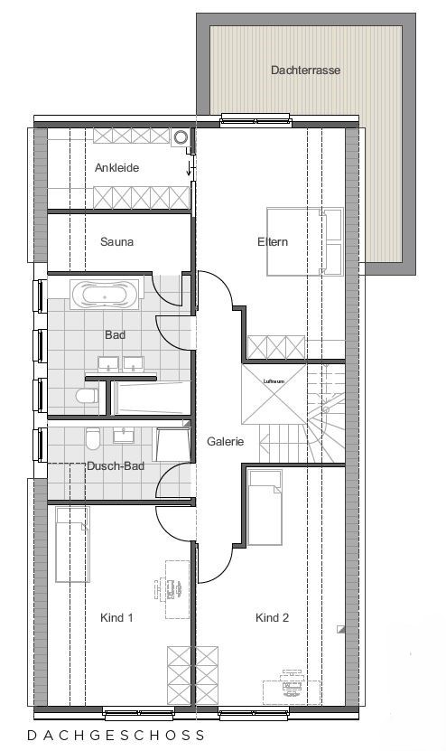
Eine viertelgewendete Treppe führt Sie ins Dachgeschoss des Hauses. Hier empfängt Sie auf der rechten Seite der Elterntrakt mit einem großen Schlafzimmer, einer Ankleide und einem eigenen Badezimmer. Dieses Bad ist mit einer begehbaren Dusche, einer großen Badewanne und einem Doppelwaschtisch ausgestattet und bietet sogar noch genug Platz für eine Sauna. Auf der gegenüberliegenden Seite der Galerie befinden sich zwei Kinderzimmer, die mit rund 17 m² und 18 m² großzügig bemessen sind. Ein eigenes Duschbad rundet den Bereich der Kinder ab.
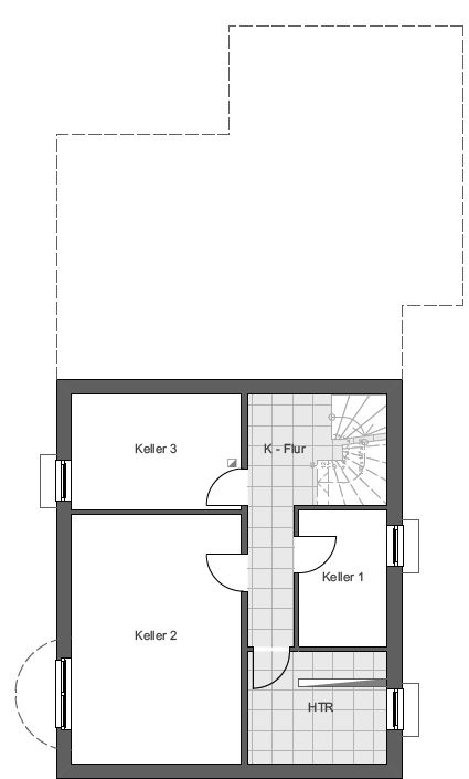
Mit einer Wohnfläche von 230 m² bietet die Casa Lignea reichlich Platz und Komfort für die ganze Familie. Optional kann sowohl der Dachboden ausgebaut als auch das Haus unterkellert werden, um weiteren Wohn- und Nutzraum zu schaffen.
Mit einer Wohnfläche von 230 m² bietet die Casa Lignea reichlich Platz und Komfort für die ganze Familie. Optional kann sowohl der Dachboden ausgebaut als auch das Haus unterkellert werden, um weiteren Wohn- und Nutzraum zu schaffen.
| Räume EG | Gfl. m² | Wfl. m² |
|---|---|---|
| Wohnen | 31,21 | 31,21 |
| Essen | 21,88 | 21,88 |
| Küche | 20,89 | 20,89 |
| Arbeiten | 18,36 | 18,36 |
| Dusch-Bad | 5,01 | 5,01 |
| HTR | 8,84 | 8,84 |
| Garderobe | 3,62 | 3,62 |
| Entrée | 17,54 | 17,54 |
| Gesamt EG | 127,35 | 127,35 |
| Räume DG | Gfl. m² | Wfl. m² |
|---|---|---|
| Eltern | 21,66 | 18,52 |
| Kind 1 | 20,51 | 17,57 |
| Kind 2 | 22,32 | 19,05 |
| Bad/Sauna | 18,93 | 18,12 |
| Dusch-Bad | 7,54 | 7,08 |
| Ankleide | 8,02 | 6,84 |
| Galerie | 7,90 | 7,90 |
| Terrasse 1/2 | 7,75 | 7,75 |
| Gesamt DG | 114,63 | 102,83 |
| Gesamt Wohnfläche | 241,98 | 230,18 |
|---|




